


+18The Sanctuary is ready for you! This land has been the family's dream for the last 18 years. The 4.1 acre parcel of totally private land has been cultivated to an exceptional standard.
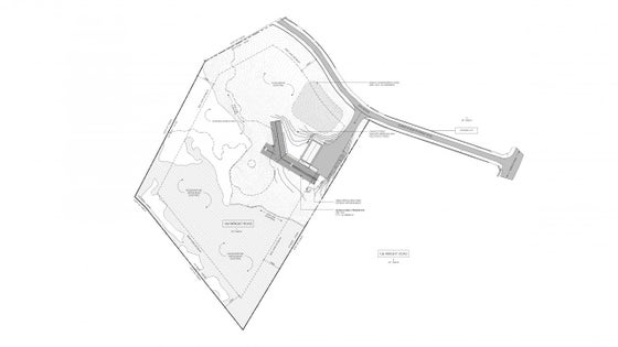
Consent has been granted for a family residence designed by an internationally renowned designer with strong NZ connections:
https://olsonkundig.com/people/tom-kundig
The Council consent has been obtained not only for the dwelling but also for your own water Bore. Both Consents are in place and transferable!
There are mature, productive Olive trees in abundance providing perfect privacy (and Olive Oil if desired). A small pond and established walkways have been created allowing you to pick a romantic picnic spot anywhere on the land. You really will feel that you have it all.
The location speaks for itself. Between Albany with both private and public schools and shopping, Coatesville for the extra special morning coffee in the Black Cottage Cafe, Silverdale 10 minutes north for more shops and schools and of course the beaches of Okura, Long Bay and the East Coast Bays. Did I mention the Coastal walkway from the end of Haigh Access Way?
Even work in the City is no problem with the Park n Ride station just a few minutes away on Oteha Valley Road.
Got to the Bayleys website www.bayleys.co.nz/1331090 for more information on the property and the new house plans. Download the LIM Report and a copy of the title. The property File from Auckland Council is available on request.
This special sanctuary property is ready for you to make your own as the owners work commitments no longer allow them to follow their dream of the Country lifestyle.
Our vendors are committed sellers - Bag yourself the deal and live your dream!
