


+4Pleasant, open outlook and great work environment.
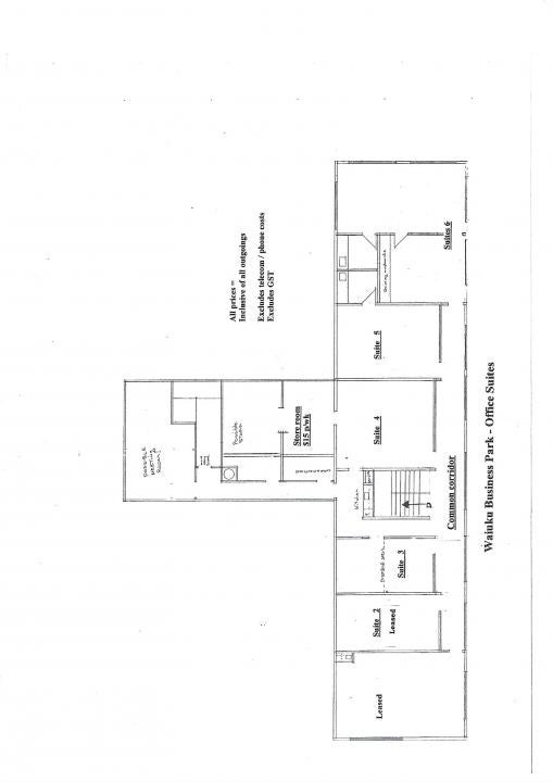
Office Suite 4 is located at Waiuku Business Park, Waiuku Town Centre. Net office area 24.6 sqm (more or less) plus a share of common areas. The facilities include air conditioning, internet, phone connections, shared kitchenette and ablutions.
Annual rent $6,325 plus GST including power, water and opex. It can be rented together with Suite 3, Suite 5, and Suite 6.
Extra storage room is available on request.
Call now to arrange a viewing.