


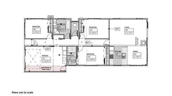
+4This to be built home is the perfect option for investment, holiday or first home buyers. Located in the popular Northlake subdivision, this property has views of two of Wanaka's most stunning mountains; Mt Gold and Mt Maude! A generous open plan living area opens out onto private outdoor living ideally located on the northern side of the home. At 127sqm (approx), the house offers three generous sized bedrooms, master with ensuite, family bathroom and a single car garage. With the house plans already consented and building on target to start in the very near future, this is a home you could be in for the summer. Don't delay as properties like this are being snapped up! Call Todd Soper 027 487 6737 today for the full information memorandum and a Sale and Purchase Agreement.
