


+5If you are after a brand-new home but want to skip the queue finding land, plans and builders, then look no further, Langsford & Ogle have you covered.
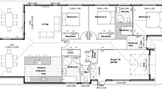
Welcome to Scott Street which offers two, brand new 152sqm (more or less) homes overlooking the town greenbelt. Each property is on its very own title and feature three double bedrooms with the master including your very own walk-in robe and ensuite. The family size kitchen will be equipped with your cooking essentials, stone bench tops and fitted with Bosch appliances including oven, hob, range hood and dishwasher. Feature pendants over the island and dining area will add a luxe feel to the space. The living and outdoor alfresco area all capture the sun, and a covered alfresco area sees you taking in your private back lawn.
Double-glazing throughout and a heat-pump to help to keep the home cozy and warm in the winter and cool in the summer. The neutral decor acts as a blank canvas upon which the new owners can easily express their own sense of style and personality. Located on a 500sqm section and a stone's throw away from the local cafes and Leamington Central. I encourage you to act quickly to make one of these your home.
Lot 1 - $950, 000
Lot 2- $950, 000
Contact me today for more information!
