


+6This quality new build is well underway, with a completion date prior to Christmas. Built by renowned local building company Bailey Builders with a 10 year Halo Building Guarantee.
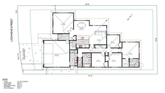
Sitting perfectly on the site, this 208sqm home is designed to capture all the sun and flows effortlessly to the covered outdoor entertaining area and private garden. This is a spec home with a difference, classic weatherboard finish with large boxed corners and facings around the windows creating a more traditional look, but with all the modern comforts such as full insulation, double glazing, stone benchtops and tiled showers.
There are 4 good double bedrooms, the master suite features stacking doors to garden, walk in robe & smart ensuite. The functional family bathroom is also equipped with tiled shower, freestanding bath & vanity plus there is separate toilet.
The impressive kitchen has quality Fisher & Paykel appliances & Ceasar stone bench-tops which continue through into the scullery. This is central to the generous open plan family and dining area which has stacking doors opening to a covered alfresco area idea for entertaining and BBQ's. The large separate formal lounge can be your own quiet hideaway.
Great opportunity to be the first owner of this quality new home without the hassles and stress of building. Secure this now and make it your own by choosing all your finishing touches. Call Andrew today for a private viewing.
