


+11SOLD
Located in the heart of the thriving Wakefield community and within an easy commute of Nelson, a large scale development or land-bank opportunity is here.
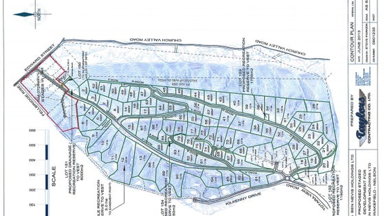
Zoned Rural Residential, the 96 hectare (approx.) block has a fully consented plan for 89 lifestyle and residential lots. These could be easily completed in stages.
The predominantly elevated sites overlook the picturesque valley and surrounding hills, with some having views to the sea.
Surrounding area on similar land and contour has been previously subdivided into residential and lifestyle blocks successfully.
Within just 30 minutes of beautiful beaches, close to rivers, Rainbow Ski field, National Parks, cafes and wineries, this location has it all.