Bayleys Real Estate Ltd
Residential
Commercial
Rural
Property Services
News and Editorial
Auctions

Richmond

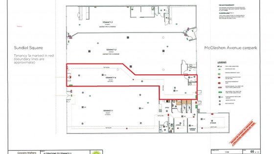
Tenancy 1a/13-15 Sundial Square, Richmond, Tasman

Watchlist
Share
133sqm Floor area

New commercial space for lease


A newly created commercial space next door to a busy gym is now available for lease. This site is highly visible, situated just off Queen Street and opposite the entrance of the Mall. Front access from Sundial Square with plenty of customer parking at the front, back access from McGlashen Avenue and a large public car park at the back. Works have begun and now is the time to get in. Make the most of the high volume of foot traffic form the gym and more to come with the extension of the mall opposite.

• 133.14sqm
• Public parking front and back
• Front and back entrances
• Good visibility
• Variety of adjoining tenants

Contact Bayleys to arrange a viewing.

For Lease- $33,285pa + GST + OPEX.


For Lease NZ$33,285 + GST (if any)
Gill Ireland

Gill Ireland


BE Nelson Ltd, Bayleys,
Licensed under the REA Act 2008

Features

Access


via front and back entrances

Great location


with plenty of parking and opposite the Richmond Mall

New commercial


space for lease