


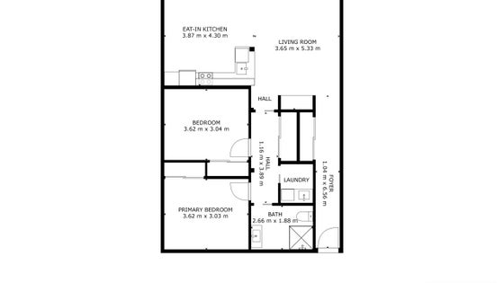
+13Freshly appointed, 18C Maxwell Road is one property that will captivate many, delivering exceptional comfort, convenience and incredible location. Located on the Northern end of the building, the open plan, kitchen, dining and living zone maximises its light from the expansive windows and the high studded ceilings where more windows facing West are found.
Working from home is a breeze with a dedicated work-space. Two spacious bedrooms, both complimented with in-built-robes, a wonderful bathroom and separate laundry complete this fabulous apartment. A heat-pump in the central area and double glazing ensure year-round comfort.
A private access door at the bottom of the stairwell, this property is one of two apartments available, a perfect first home for those getting onto the property ladder or investors looking for a solid opportunity. A Ten-Year Master build Guarantee puts surety on the quality of the workmanship.
This is the perfect first home or investment property.
Builders Report, LIM Report, and Information Memorandum available upon request.
Contact the vendors exclusive agent Nick Sowman or Zak Thorpe today.