


+4Fantastic retail tenancy available in the heart of Blenheim's CBD. Get your business seen here with prime location on Maxwell Road offering ample opportunity for foot traffic and excellent street appeal.
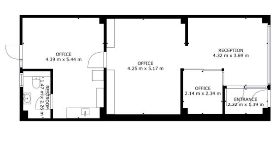
The 80sqm tenancy offers plenty of natural light from the large windows and would equally suit a professional office. Just a few minutes walk from all day parking on Kinross Street and situated among retail and office spaces in the CBD there are ample cafes, restaurants and bars close by.
The space is currently divided to house a reception area, meeting room, open plan office, kitchenette and staff amenities. There is rear access to the laneway accessible from Scott Street.
Available for lease, $30,000 + GST & OPEX, per annum.
Contact the vendor's sole agent, Grant Thorpe or Zak Thorpe, for further information.