


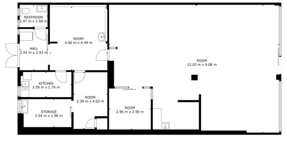
+10Introducing 28 Maxwell Road, a 170sqm building located right in the heart of Blenheim's retail precinct.
Potential to divide the premises into two separate tenancies;
One x 85sqm,
One x 85sqm,
Equals = an increase the rental income.
Or, invest now and save as an owner occupier.
The large windows spanning the front of the building create excellent street appeal and branding opportunities for tenancies.
The busy main road offers high vehicle and foot traffic, with many cafes, bars and restaurants in close proximity.
Previously a hair salon, the open floor plan lends itself well to retail, office or cafe/restaurant tenancies.
A 70%NBS is attractive for both local and national tenants alike.
Currently generating $35,000 + GST & OPEX per annum.
To find out more, contact Grant Thorpe or Zak Thorpe today.