


+16Deadline sale
Closing 1pm, 25 August 2022 (unless sold prior)
Available for sale is this well located light industrial building, ideal tenanted investment or potential owner/occupier premises.
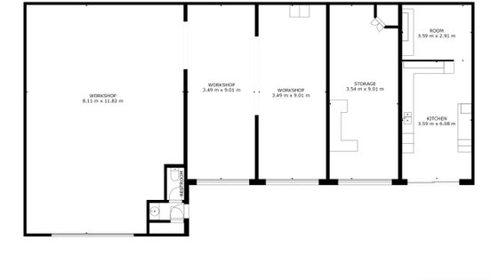
The tilt slab concrete with brick facade building comprises five bays with four roller doors. An excellent workshop space is accommodated across the wider left bay and has cut throughs into the two middle bays to create adjoining access.
Of the remaining two bays one has a roller door and is ideal for storage. The other has been renovated is ideal for staff amenities or an office.
The site has hard stand yard space to the front and excellent access to Sutherland Street with a double width entrance. Complete the package with the ability to securely fence this site as well as great signage opportunities.
For further information, or to view, please contact the sole agents Grant Thorpe and Zak Thorpe.