Bayleys Real Estate Ltd
Residential
Commercial
Rural
Property Services
News and Editorial
Auctions

Methven

29 Camrose Avenue, Methven, Ashburton

Watchlist
Share
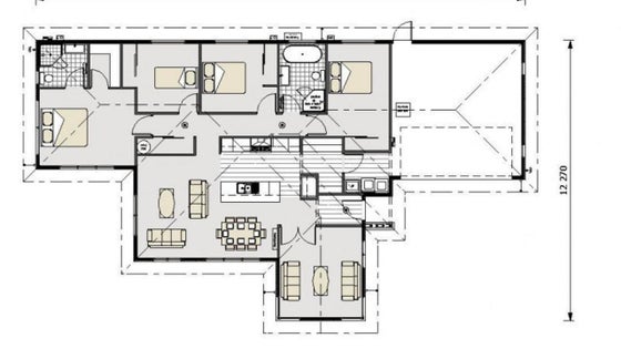
4 Bedrooms
2 Lounges
2 Bathrooms
2 Parking
575sqm Land area SQM

The perfect package


This is a classic home been thoughtfully designed to maximise space and comfortable living.
With four double bedrooms, a family bathroom and an ensuite, the home is well-appointed and suited to a range of lifestyles. Features include a separate lounge, open plan living, kitchen with butlers pantry and a master suite with a walk-in wardrobe and ensuite. Along with double garage, separate laundry, built-in wardrobes in all bedrooms, double-door fridge space and so much more. Built by Stonewood Homes, interior design assisted by Country by Design. A great opportunity to have a brand-new home with all the details taken care of.

Price guide: $600,000s.

To access documents we hold for this property please visit: http://www.propertyfiles.co.nz/property/5512448

For Sale by Negotiation
Maree Firth

Maree Firth


Whalan and Partners Ltd, Bayleys,
Licensed under the REA Act 2008
Rosa Dekker

Rosa Dekker


Whalan and Partners Ltd, Bayleys,
Licensed under the REA Act 2008

Features

Four double bedrooms


All with built-in wardrobes

Large open plan


Kitchen with butler's pantry

Modern home


With ensuite, walk-in wardrobe