


+3Prebbleton is an established and growing community and within a quiet culdesac in popular "Sterling Park" this brand new home has begun construction. Planned to be completed in early spring and superbly designed for sun orientation and generous spaces for the entire family.
Featuring:
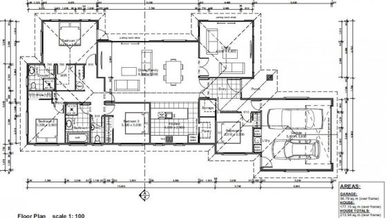
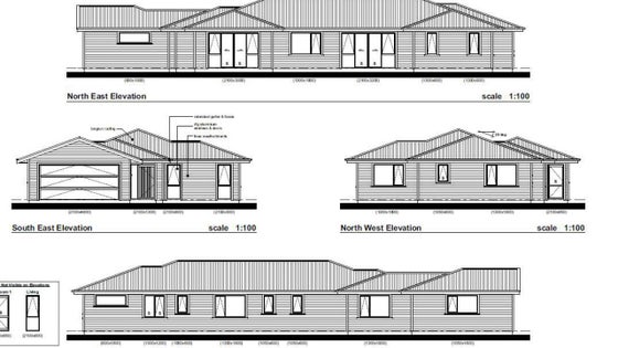
- 214sqm (approx) floorplan with Linear weatherboard construction on a family sized 725sqm section
- Four double bedrooms, master with WIR, ensuite and outdoor flow
- Open plan family/dining and kitchen with central breakfast bar, walk-in-pantry
- Separate lounge with double doors to create separation when desired
- Superb outdoor flow from both living zones to large BBQ terrace
- Attractive formal entrance with undercover porch area
- Double internal access garaging with laundry nook and off street parking space
- Prebbleton Primary School and Lincoln High Zones
Act quickly to secure this brilliant, well priced house and land package and be settled in spring. Call today for a full set of plans and specifications.
