


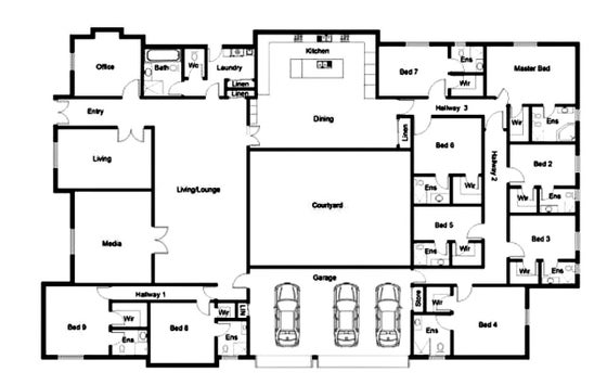
+20MORTGAGEE SALE\n\nA genuine opportunity exists to purchase a large home on a generous lifestyle section on the edge of blue chip Tamahere. The mortgagee instructions are clear - this property needs a new owner before Christmas. Recently refurbished this extraordinary home will suit large extended families looking to be close to town and in a sought after school zone. Comprising nine bedrooms and nine bathrooms, multiple living areas, a central courtyard and triple garaging, there is plenty of space to spread out and make this place your new family home. Outside a blank canvas awaits the new owner to complete the landscaping. Add patios and decks, an outdoor fire and formal gardens, the mind boggles as to what you can achieve. Located at the northern end of Tamahere the adjacent suburb of Hillcrest offers the convenience of local amenities, supermarket and shops. Call for viewing times and further information. CT: 472885 (Freehold).\n
