


+3$2,034,375 plus GST (if any) ($875/sqm)
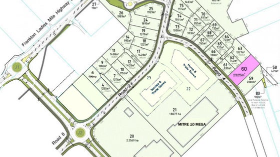
Seize the opportunity to purchase this large 2325sqm industrial site in Queenstown's newest Industrial Area, Shotover Park, and secure your business's future.
With a wide 31 metre road frontage and situated opposite the new Mitre 10 Mega, give your business the profile it deserves.
Call today, as there are few opportunities like this available. Steven Kirk 027 433 2545.
