

+20AUCTION BROUGHT FORWARD
11am Friday the 17th of May 2019
You will fall in love with this fabulous Parnell apartment in the desirable Zenith Apartment complex.
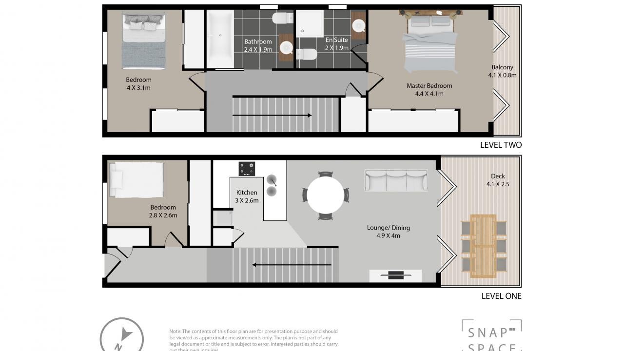
Large, freehold and in Parnell, this modern apartment features three bedrooms, two well appointed bathrooms (one ensuite) and open plan kitchen, living and dining area which flows out onto a generous covered deck. There are two secure, tandem carparks ideally located close to the lift for easy access plus a storage locker.
Tightly held, the Zenith complex has tilt-slab concrete construction, an exceptional Body Corporate and a pro active, onsite building manager.
Perfectly positioned your Parnell lifestyle awaits - cafes, restaurants & bars galore. Strolling to the French Markets on the weekend, walks around the bays or walking into town. Newmarket at the top of the hill, the Domain, Town all within easy walking distance and access to all motorways at your doorstep
Schooling is a breeze - Parnell District School, Double Grammar Zone and you could nearly throw a stone at ACG College. When it's time for tertiary you're in walking distance to Auckland University, AUT or any number of the available Language and Business schools in town.
Calling all buyers! this apartment will suit downsizers, first home buyers, small families, investors or those seeking a lock up and leave.
First time on the market since new, the owners are ready and willing to sell.
Auction Brought Forward to the 17th of May 2019 at 11:00am.
Call Chris Reeves today for an information pack. 021 942 089 chris.reeves@bayleys.co.nz