


+24Under contract.
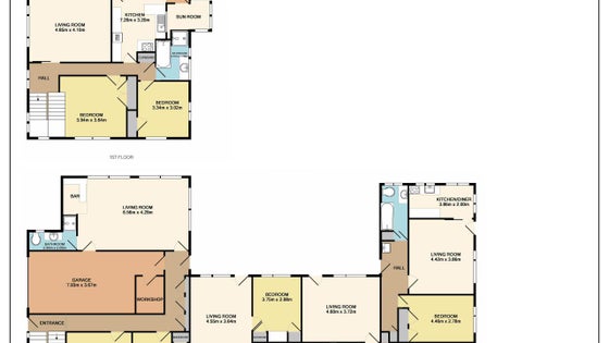
Prime freehold site 802sqm(more or less). Four bedroom home and three self-contained flats in an area with exciting upcoming city expansion just around the corner. Dual access - Dunbar and Balmoral Roads. An ideal family home, with large lower lounge/bar area with bathroom facilities and two bedrooms. Upstairs two bedrooms, separate lounge and dining serviced by main bathroom and separate toilet. Internal access from a private driveway adds to the security of this home. Unitary Plan - Residential-Terrace Housing and Apartment Building Zone. AGGS, MAGS school zone.
Agent: Jan Honey, 021 997 093
Viewing times: Sat/Sun 12.30-1pm
Auction: Thursday 10am, 9 Nov 2017, 50 Remuera Road, Remuera (unless sold prior)
For additional information regarding this property, please visit
http://www.propertyfiles.co.nz/1410363