


+26Situated in a quiet cul-de-sac in the heart of Highland Park, this property is a must see for first home buyers or downsizers.
  
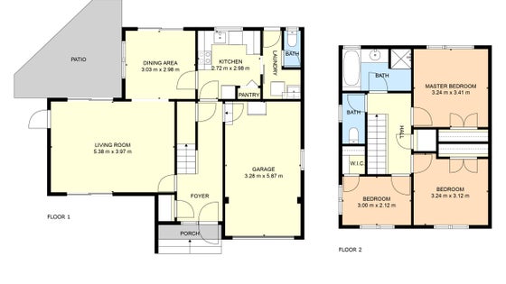
Featuring a well thought out floor plan, offering three spacious bedrooms, a family bathroom and a separate toilet. A modern and functional kitchen flows through to the dining and living areas which are drenched in all day sun. Outside you have a spacious courtyard, the perfect place to unwind and entertain family and friends. The fully fenced section provides a private garden with enough space for the kids to play and the family pet.
A single car garage with internal access houses the laundry area and provides additional storage space. There are also two off street car parks. Llyod Elsmore Park, the Highland Park shops and library are all within walking distance. Pakuranga Highway and public transport options are easily accessible, making commuting a breeze. Furthermore, this property falls within the excellent school zones of Howick Primary School, Howick Intermediate and Pakuranga College, ensuring that your education needs are well taken care of.
Come take a look at one of our scheduled open homes or arrange a private appointment. 
-Quiet cul-de-sac in the heart of Highland Park.
-Three spacious bedrooms, a family bathroom and a separate toilet. 
-Single car garage with internal access for added security and plenty of storage. 
-Low maintenance courtyard and garden. 
-Walking distance to Llyod Elsmore Park and the Highland Park shops and library. 
-In zone for Howick Primary School, Howick Intermediate and Pakuranga College.

