


+35Call to arrange a private viewing with Lawrence and Jo.
This immaculate home of more or less 320sqm presents an incredible opportunity to secure a large family home in one of Dannemoras' most desirable cul-de-sacs.
The moment you enter, you will be impressed by the grand foyer that leads you to the open plan kitchen and family area. The kitchen is an entertainers dream with top of the range Bosch appliances, illuminated Italian stone splashback and feature wall with organised, functional storage. There is an abundance of space with a separate formal dining and living room. Step outside to the covered patio and low maintenance backyard, an ideal space for hosting summer bbqs and year round entertaining.
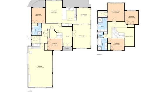
-Two bedrooms and a bathroom on the lower level
-Three bedrooms on the upper level, two of which share the family bathroom while the master boasts an opulent ensuite and walk in wardrobe
-A spacious triple car garage provides plenty of storage space
-A commanding forecourt has space for additional off street parking or a boat
-The home has two laundry spaces incorporated for further future proofing, ideal for multi-generational living
-All the amenities available at Botany Town Centre are within close proximity
-In zone for Point View School (walking distance), Somerville Intermediate and Botany Downs Secondary College

