


+22Refer to 34A Moore Street for more viewing times. Please note that photos are of a similar property.
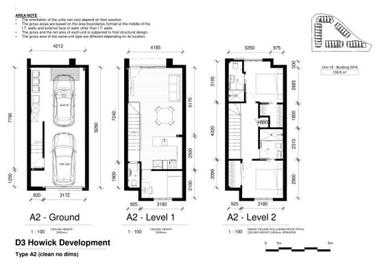
Positioned within the just-completed Oaken Residences, this spacious townhouse offers a flexible layout, perfect for families or those who love having extra space. Spread over three levels, this well considered home features:
• Open plan kitchen, dining, and living with a bedroom and powder room on the same level.
• Study nook ideal for remote work or study.
• Two bedrooms upstairs, including a master with ensuite and walk-in wardrobe.
• Family bathroom with quality finishes.
• Floor area 138.8sqm
• Tandem internal-access garage with laundry.
Located within a boutique development by D3 Development and the award-winning Leuschke Group Architects, every detail has been carefully considered to balance quality, comfort and modern living with Howick's timeless charm. The master planned development features wide driveways for easy manoeuvrability, a landscaped courtyard by award winning Mace Landscape designers and is protected by a Master Builders Guarantee.
Quality, low-maintenance living is at the heart of Oaken. With high grade finishes, quality fixtures and fittings throughout, and high thermal and acoustic ratings for year-round comfort, Oaken Residences sets a new standard of townhouse living.
Situated on a freehold title with no body corporate fees, and a short stroll to the local markets, cafes, and restaurants, this is village living redefined. Now is the opportunity for you to be among the first to call one of these beautifully appointed homes your own.



Our agents are experts on all things in the property market, if you haven't found what you're looking for, please enquire with the listing agent now to have all of your property questions answered.
Contact us and have your questions answered.
Use the download button below to view all available documents for this property.