


+8Great terms - 10% deposit and balance on settlement
An affordable home, built to exacting standards with precision and care. We are proud to present another quality property by reputable New Zealand builder, Hunter Residential.
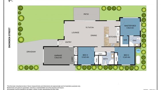
With high 2.7m stud throughout creating a sense of space, there are so many features that make this the ideal family home you have been waiting for.
Accommodation is catered for with 3 large double bedrooms, with the sumptuous master suite boasting a generous walk-in-wardrobe and en-suite bathroom. A carefully considered floor plan has been designed for family life, with the sunny open plan living, dining and kitchen area opening to a well designed outdoor entertaining space. The gourmet kitchen is finished with Fisher & Paykel appliances and will have you entertaining friends and family with style and ease.
Milldale is located directly opposite Millwater and Silverdale, off the Millwater interchange. Milldale is a gently undulating valley that is drenched in northerly sun. Thanks to the popularity of Millwater, everything to make yourself at home is already right at your doorstep. Just moments away from the rapidly expanding Silverdale Retail Centre, Highgate Business Park and Silverdale Industrial Centre. Enjoy a growing number or cafes, bars and restaurants, plus world class recreational and medical facilities, all just minutes from the many beaches of the Hibiscus Coast.
Sold with a 10 year Master Builder Warranty for your peace of mind. Phone today for your information pack or to discuss making this brand new home your own.