


+15Only one available in this size
• The developer is offering a price incentive on the next 2 sales only. Enquire for details.
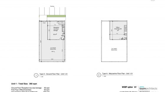
• 360sqm total size
• 85sqm first floor office
• 190sqm high stud warehouse
• Resource consent granted - construction commencing soon
• 85sqm reception, low stud storage
• New security gated complex
• Only 650 metres to motorway interchange
The front unit in the new Wiri Station Business Park is available for sale now. There is only one unit of this size at 360sqm available, so secure this now before it is sold. The unit will have substantial glazing, 85sqm of reception and low stud storage, 190sqm of high stud warehouse and 85sqm of first floor office. Includes 5 car parks. The developments has Resource Consent and construction is starting soon. The security gated complex will include a designated container devanning area. The location benefits from being located at the gateway to the new Western Ring Route to provide alternative routes to Penrose the CBD and Port and through to the Northern Motorway.
Contact the agents for full details.
Sole agency

