


+3The demand for and rarity of coastal building land suggests the sites in this Te Puna gated community wrapped by the inner Tauranga Harbour and the Wairoa River will be sought after.
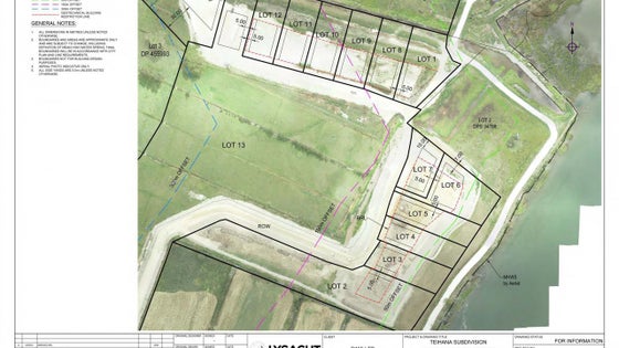
Teihana is a revelation. The 12 Lots are all generous lifestyle sizes, starting from 1875 sqm*, the majority between 2000 and 2400 sqm*. A couple are over 3000 sqm*, one exceeding a hectare. The sites are in two rows, one facing east over the Wairoa river - with outlook towards Bethlehem across the water. The other row faces north, looking over the lower flats and out to sea, Mauao and Matakana Island with the houses of Matua visible across the harbour estuary.
Arrive at Teihana via an attractive secure gate and scoop around the sealed and landscaped access drive to the rear of each site. Extensive preparation delivers beautiful elevation and ensures every site meets the latest geotech requirements. Titles have been issued, your selected property ready for you to build on and landscape.
Imagine life here by the water, enjoying the ebb and flow of the tides, the changing light from daybreak till moon rise and the birdlife. Savour the coastal environment with esplanade reserve and ample open space around you. The Omokoroa Cycle Trail weaves along below the river front sites and continues a paddock away from the harbour facing ones.
It's a private safe haven from where you can drive into Tauranga's CBD in around 15 minutes or be in various satellite villages even sooner. Choose coffee at Te Puna, Clarke Road or Bethlehem Town Centre. Hop on your E-bike and ride the trails all the way to Omokoroa and in the future, further. The nearby Cidery is closer by two wheels than four!
Teihana... well worth reserving your place here on the coast near the city.
Phone me for a comprehensive property information pack.
FOR SALE: Lots 2, 3, 4, 9, 11, 12
(* more or less)
