


+5This highly visible corner site is set to undergo a comprehensive rejuvenation, bringing to market three levels of premium office, medical, or showroom space totalling 2,668sqm, complemented by 64 on-site car parks.
Boasting dual frontages to Khyber Pass Road and Grafton Road, together carrying over 130,000 vehicles each week, the property stands as one of Auckland's most prominent and accessible city-fringe locations.
The building features efficient, adaptable floor plates with the following areas available:
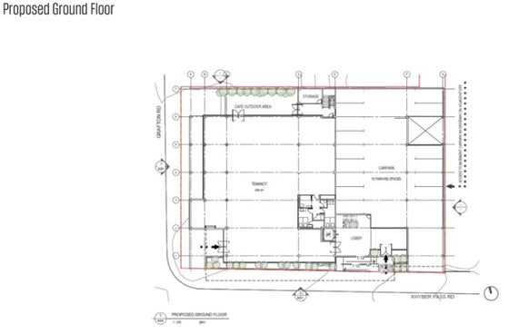
•Ground Floor: 611sqm
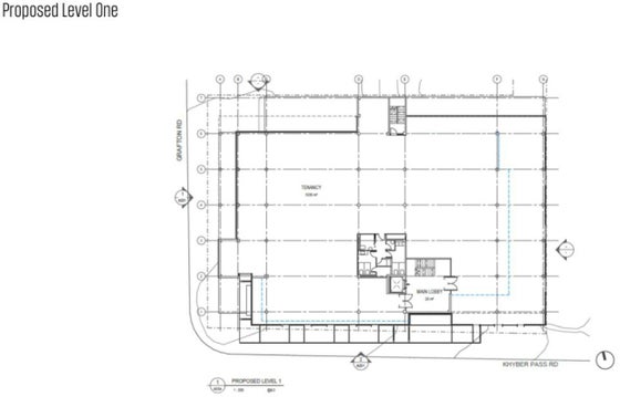
•Level 1: 1,063sqm
•Level 2: 994sqm + 138sqm deck
Sustainable architectural design sits at the heart of the redevelopment, including solar panels and rainwater harvesting to help reduce emissions and lower tenant operating costs. A standout attribute is the expansive Level 2 balcony, offering sweeping views across the Waitematā Harbour and Sky Tower.
Positioned at the gateway to the Nugent Street and Normanby Road high-end retail precinct, the building occupies an elevated city-fringe location within a short walk of the new Maungawhau Station and less than five minutes from Auckland City Hospital in an area set for significant future growth.
Ready for occupation in Q4 2026, the project presents a rare opportunity to secure a tailored workspace aligned with the landlord's base-build works. This is an exceptional chance to partner with a proactive landlord dedicated to fostering long-term relationships and prioritising what's right for both your people and the planet.
Get in touch today to learn more or to explore how we can support improved workspace efficiency for your business.
Agent details;
Ben Wallace
0211844747
Sam Fitzgerald
021 525 110
Chris Wong
021 964 924



Our agents are experts on all things in the property market, if you haven't found what you're looking for, please enquire with the listing agent now to have all of your property questions answered.
Contact us and have your questions answered.